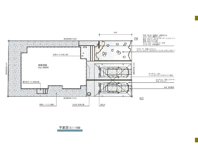
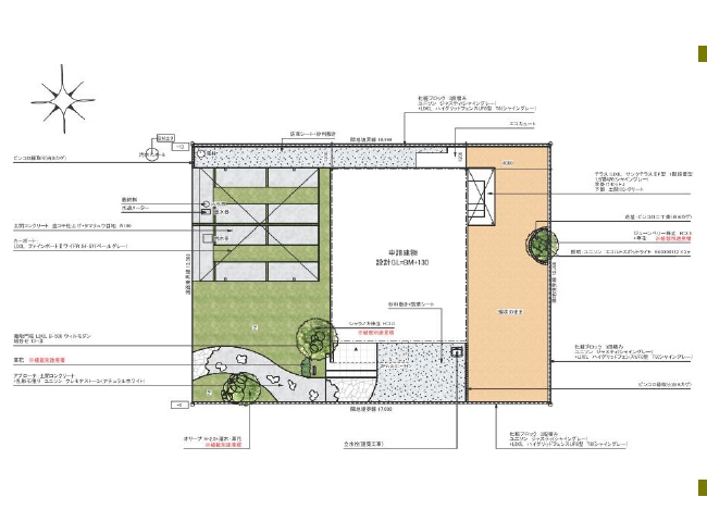
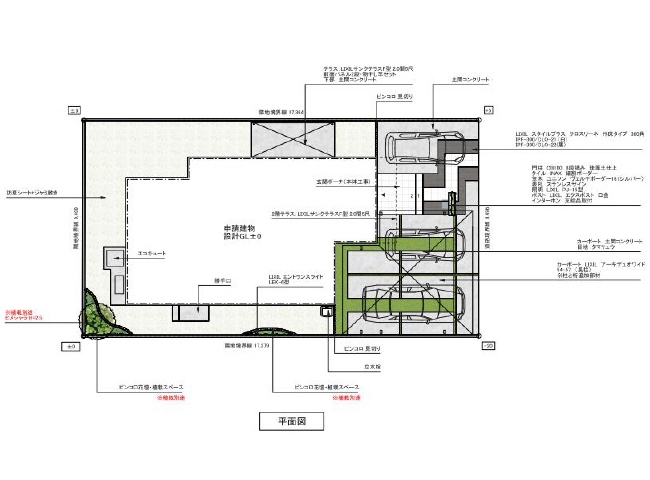
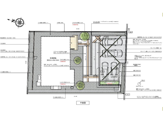
高砂のお客様に喜ばれているCGプラン!完成後のイメージをCGで作成します

高砂カーポート&エクステリア新苑は、お客様との打ち合わせから得たイメージを平面図だけでなく、すぐさまコンピュータグラフィックにてイメージをご提案させていただきます。お客様からは「仕上がりイメージがつかみやすい!」と大好評を得ております。

高砂カーポート&エクステリア新苑は、お客様との打ち合わせから得たイメージを平面図だけでなく、すぐさまコンピュータグラフィックにてイメージをご提案させていただきます。お客様からは「仕上がりイメージがつかみやすい!」と大好評を得ております。




































〒679-2163
兵庫県姫路市香寺町土師748-6
TEL.079-260-6109
FAX.079-247-8212